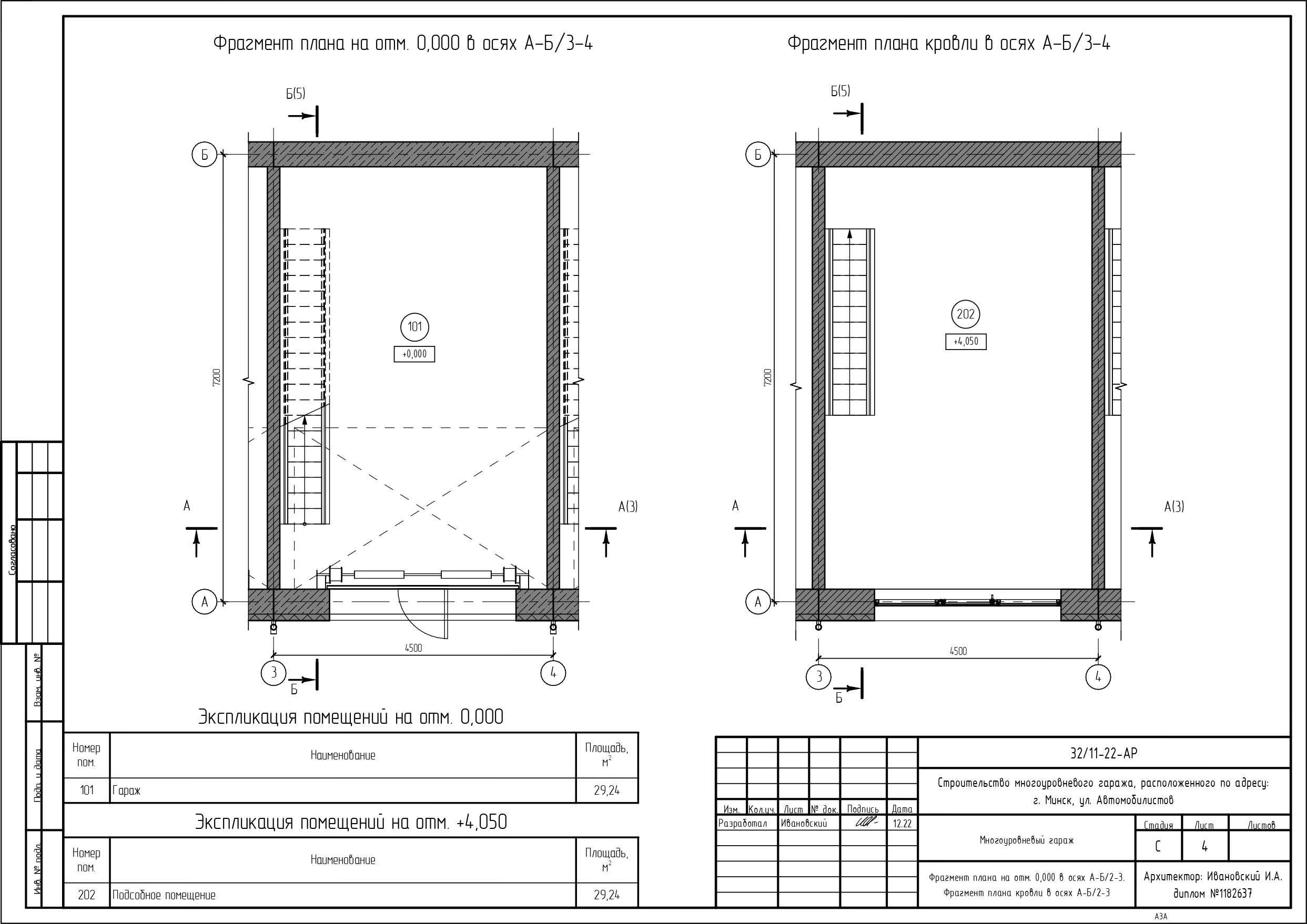
Общие данные по объекту: "Строительство многоуровневого гаража, расположенного по адресу: г. Минск, ул. Автомобилистов", состоящего из 36 блок-секций с габаритными размерами в осях 7,2х4,5 метра.
- Строительный проект по объекту: "Строительство многоуровневого гаража, расположенного по адресу: г. Минск, ул. Автомобилистов» выполнен на основании:
- архитектурно-планировочного задания
- Степень огнестойкости здания (по СН 2.02.05-2020) - IV.
- Класс функциональной пожарной опасности здания (по ТКП СН 2.02.05-2020) - Ф5.2.
- Категория здания по взрывопожарной и пожарной опасности (ТКП 45-2.02-315-2018) - В.
- Класс сложности объекта (по СТБ 2331-2015) - К-4.
- Проектируемый гараж состоит из 36 блок-секций, сблокированных между собой. Блок-секция представляет собой двухэтажный объем с размерами в плане 7,2х4,5м. Общая длина гаража - 162 м. Вдоль осей 13 и 25 предусмотрены деформационные швы. Длина температурного отсека - 54 м. Высота первого этажа в чистоте до низа плиты 3,8 м, высота второго этажа до низа плиты 3,17 м. Уровень отметки пола второго этажа составляет +4,050. Высота парапета от уровня проезда 8,12 м.
- За условную отметку 0.000 принята отметка пола первого этажа существующего здания.
- Здание запроектировано со стеновыми несущими конструкциями.
- Фундаменты здания выполнены из сборных блоков ФБС с монолитными участками и устройством монолитного пояса по периметру фундамента. Цоколь утеплен плитами из экструдированного пенополистирола толщиной 100 мм от отм. -1,200 до отм. +0,500.
- Несущие внутренние стены запроектированы из блоков ячеистого бетона толщиной 400 мм. Предел огнестойкости наружных несущих стен здания - не менее REI 15-К2 согласно СН 2.02.05-2020.
- Наружные ненесущие стены запроектированы из блоков ячеистого бетона толщиной 500 мм без утепления с последующей отделкой легкой штукатурной системой. Первый и верхний ряды кладки выполнены из блоков с подрезкой до толщины 450 мм со слоем утеплителя из пенополистирола толщиной 50 мм. Предел огнестойкости наружных ненесущих стен - не менее E 15-К3 согласно СН 2.02.05-2020.
- Перекрытие и бесчердачное покрытие запроектированы из сборных многопустотных железобетонных плит с монолитными участками. Сборные плиты укладываются на монолитный железобетонный пояс, выполненный по всему периметру здания. Предел огнестойкости междуэтажных перекрытий - не менее REI 15-К3. Предел огнестойкости бесчердачных покрытий – не нормируется согласно СН 2.02.05-2020.
- Оконные блоки запроектированы из ПВХ профиля с заполнением двухкамерным стеклопакетом. Оконные откосы с наружной стороны утеплены плитами из экструдированного пенополистирола толщиной 20мм.
- Кровля здания плоская, с наружным организованным водостоком. В качестве утеплителя использованы пенополистирольные плиты толщиной 180 мм. Разуклонка выполнена из керамзитобетона с последующим выравнивающим слоем из цементно-песчаной стяжки толщиной 40мм, армированной металлической сварной сеткой. Покрытие кровли – двухслойный водоизоляционный ковер из битумно-эластомерных материалов.
- Покрытие пола второго этажа по сборному перекрытию – выравнивающая цементно-песчаная стяжка, облицовка плиткой.
- Пол первого этажа по грунту – уплотненное основание из смеси песчано-гравийной, подстилающий слой бетона толщиной 200 мм, армированный двойной металлической сеткой, наливной пол.
- Внутренняя отделка стен – выравнивающая штукатурка с последующим шпатлеванием, грунтовкой, окраской акриловыми красками в два слоя.
- Внутренняя лестница – металлическая. Предел огнестойкости маршей и площадок лестниц - не менее R 15-2.
- Цоколь здания утеплен плитами из экструдированного пенополистирола толщиной 100 мм от отм. -1,200 до отм. +0,500. Первый и верхний ряды кладки выполнены из блоков с подрезкой до толщины 450 мм со слоем утеплителя из пеноплистирола толщиной 50 мм. В зоне размещения мнолитных ж/б поясов предусмотрено утепление плитами из пенополистирола толщиной 100мм. Минимальный класс пожарной опасности с наружной стороны систем утепления и облицовки - не менее КН3 согласно СН 2.02.05-2020.
- Двери наружные - металлические с полимерным покрытием в заводских условиях. Двери внутренние - металлические с полимерным покрытием в заводских условиях. Все двери запроектированы в соответствии с СТБ 2433-2015.
- Ворота наружные - секционные. В одной блок секции предусмотрена установка двух ворот. Одни ворота в каждой блок-секции выполнены с эвакуационной калиткой.
- Наружные ограждающие конструкции стен запроектированы с сопротивлением теплопередаче не менее 2,0 м² ℃/Вт. Заполнение световых проёмов запроектировано с сопротивлением теплопередаче не менее 0,6 м² ℃/Вт. Покрытия запроектированы с сопротивлением теплопередаче не менее 3,0 м² ℃/Вт.
- Все материалы, изделия и конструкции, используемые при возведении здания, должны быть сертифицированными на территории Республики Беларусь.
- Технические решения, принятые в чертежах, соответствуют требованиям экологических, санитарно-гигиенических, противопожарных и других действующих норм, и правил и обеспечивают безопасную для жизни и здоровья людей эксплуатацию объекта при соблюдении предусмотренных рабочими чертежами мероприятий.
- При производстве строительных работ следует строго соблюдать требования документа "Правила по охране труда при выполнении строительных работ" согласно постановлению Минстройархитектуры РБ №24/33 от 31.05.2019, а также ТКП 45-1.03-161-2009.
- Технико-экономические показатели одной блок-секции:
- Общая площадь здания – 58,9 кв.м.
- Площадь застройки – 34,9 кв.м.
- Строительный объем - 263,7 куб.м.
Общие данные по объекту: "Строительство многоуровневого гаража, расположенного по адресу: г. Минск, ул. Автомобилистов", состоящего из 36 блок-секций с габаритными размерами в осях 9х14 метров.
- Строительный проект по объекту: "Строительство многоуровневого гаража, расположенного по адресу: г. Минск, ул. Автомобилистов» выполнен на основании:
- архитектурно-планировочного задания
- Степень огнестойкости здания (по СН 2.02.05-2020) - IV.
- Класс функциональной пожарной опасности здания (по ТКП СН 2.02.05-2020) - Ф5.2.
- Категория здания по взрывопожарной и пожарной опасности (ТКП 45-2.02-315-2018) - В.
- Класс сложности объекта (по СТБ 2331-2015) - К-4.
- Проектируемый гараж состоит из 36 блок-секций, сблокированных между собой. Блок-секция представляет собой двухэтажный объем с размерами в плане 9 х 14 м. Общие габариты гаража в плане – 163 х 28 м. Вдоль осей 4-5 и 12-13 предусмотрены деформационные швы. Длина температурных отсеков - 27 м, 63 м, 72 м. Высота первого этажа в чистоте до низа плиты 3,67 м, высота второго этажа до низа плиты 2,79 м. Уровень отметки пола второго этажа составляет +4,000. Высота парапета от уровня проезда 7,77 м.
- За условную отметку 0.000 принята отметка пола первого этажа.
- Здание запроектировано со стеновыми несущими конструкциями.
- Фундаменты здания выполнены из сборных блоков ФБС с монолитными участками и устройством монолитного пояса по периметру фундамента. Цоколь утеплен плитами из экструдированного пенополистирола толщиной 100 мм от отм. -1,200 до отм. +0,500.
- Несущие внутренние стены запроектированы из блоков ячеистого бетона толщиной 400 мм. Предел огнестойкости наружных несущих стен здания - не менее REI 15-К2 согласно СН 2.02.05-2020.
- Наружные ненесущие стены запроектированы из блоков ячеистого бетона толщиной 500 мм без утепления с последующей отделкой легкой штукатурной системой. Первый и верхний ряды кладки выполнены из блоков с подрезкой до толщины 450 мм со слоем утеплителя из пенополистирола толщиной 50 мм. Предел огнестойкости наружных ненесущих стен - не менее E 15-К3 согласно СН 2.02.05-2020.
- Перекрытие и бесчердачное покрытие запроектированы из сборных многопустотных железобетонных плит с монолитными участками. Сборные плиты укладываются на монолитный железобетонный пояс, выполненный по всему периметру здания. Предел огнестойкости междуэтажных перекрытий - не менее REI 15-К3. Предел огнестойкости бесчердачных покрытий – не нормируется согласно СН 2.02.05-2020.
- Оконные блоки запроектированы из ПВХ профиля с заполнением двухкамерным стеклопакетом. Оконные откосы с наружной стороны утеплены плитами из экструдированного пенополистирола толщиной 20мм.
- Кровля здания плоская, с наружным организованным водостоком. В качестве утеплителя использованы пенополистирольные плиты толщиной 180 мм. Разуклонка выполнена из керамзитобетона с последующим выравнивающим слоем из цементно-песчаной стяжки толщиной 40мм, армированной металлической сварной сеткой. Покрытие кровли – двухслойный водоизоляционный ковер из битумно-эластомерных материалов.
- Покрытие пола второго этажа по сборному перекрытию – выравнивающая цементно-песчаная стяжка, облицовка плиткой.
- Пол первого этажа по грунту – уплотненное основание из смеси песчано-гравийной, подстилающий слой бетона толщиной 200 мм, армированный двойной металлической сеткой, наливной пол.
- Внутренняя отделка стен – выравнивающая штукатурка с последующим шпатлеванием, грунтовкой, окраской акриловыми красками в два слоя.
- Внутренняя лестница – металлическая. Предел огнестойкости маршей и площадок лестниц - не менее R 15-2.
- Цоколь здания утеплен плитами из экструдированного пенополистирола толщиной 100 мм от отм. -1,200 до отм. +0,500. Первый и верхний ряды кладки выполнены из блоков с подрезкой до толщины 450 мм со слоем утеплителя из пеноплистирола толщиной 50 мм. В зоне размещения мнолитных ж/б поясов предусмотрено утепление плитами из пенополистирола толщиной 100мм. Минимальный класс пожарной опасности с наружной стороны систем утепления и облицовки - не менее КН3 согласно СН 2.02.05-2020.
- Двери наружные - металлические с полимерным покрытием в заводских условиях. Двери внутренние - металлические с полимерным покрытием в заводских условиях. Все двери запроектированы в соответствии с СТБ 2433-2015.
- Ворота наружные - секционные. В одной блок секции предусмотрена установка двух ворот. Одни ворота в каждой блок-секции выполнены с эвакуационной калиткой.
- Наружные ограждающие конструкции стен запроектированы с сопротивлением теплопередаче не менее 2,0 м² ℃/Вт. Заполнение световых проёмов запроектировано с сопротивлением теплопередаче не менее 0,6 м² ℃/Вт. Покрытия запроектированы с сопротивлением теплопередаче не менее 3,0 м² ℃/Вт.
- Все материалы, изделия и конструкции, используемые при возведении здания, должны быть сертифицированными на территории Республики Беларусь.
- Технические решения, принятые в чертежах, соответствуют требованиям экологических, санитарно-гигиенических, противопожарных и других действующих норм, и правил и обеспечивают безопасную для жизни и здоровья людей эксплуатацию объекта при соблюдении предусмотренных рабочими чертежами мероприятий.
- При производстве строительных работ следует строго соблюдать требования документа "Правила по охране труда при выполнении строительных работ" согласно постановлению Минстройархитектуры РБ №24/33 от 31.05.2019, а также ТКП 45-1.03-161-2009.
- Технико-экономические показатели одной блок-секции:
- Общая площадь здания – 236,8 кв.м.
- Площадь застройки – 131,9 кв.м.
Строительный объем - 1 001






